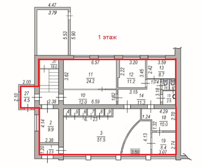
Сдается Помещение свободного назначения 145 кв.м.
Обзор№ - 183
| Арендная плата (Помесячно) | 181 250 |
|---|---|
| Цена кв.м. в год | 15 000 |
| Тип коммерческой | Помещение свободного назначения |
| Площадь, кв.м. | 145 |
| Этаж | 1 |
| Этажность | 2 |
Адрес
| Населенный пункт | Балабаново |
|---|---|
| Улица | улица 1 Мая |
| Номер дома | 2 |
В избранное Балабаново, вокзальная площадь
Нежилое помещение площадью 185 кв. м., расположенное в двухэтажном нежилом отдельно стоящем здании. Площадь 1 этажа - 184,6 кв.м Здание обеспечено электроснабжением, отоплением, водоснабжением и канализацией.
Ближайшее окружение представлено объектами жилого и общественно-делового назначения. Район расположения объекта характеризуется развитой инфраструктурой. Интенсивность пешеходных и транспортных потоков около здания находится на высоком уровне. Ближайшая остановка общественного транспорта "Станция Балабаново" находится на расстоянии менее 100 м от объекта недвижимости. !









