Сдается Помещение свободного назначения 164 кв.м.
Обзор№ - 184
| Арендная плата (Помесячно) | 164 000 |
|---|---|
| Цена кв.м. в год | 12 000 |
| Тип коммерческой | Помещение свободного назначения |
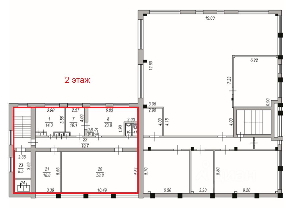
| Площадь, кв.м. | 164 |
| Этаж | 2 |
| Этажность | 2 |
Адрес
| Населенный пункт | Балабаново |
|---|---|
| Улица | улица 1 Мая |
| Номер дома | 2 |
В избранное Балабаново, вокзальная площадь
Нежилое помещение площадью 164 кв. м., расположенное на 2-ом этаже двухэтажного нежилого здании. Здание обеспечено электроснабжением, отоплением, водоснабжением и канализацией. Отделка - офисная. Планировка помещений - смешанная.
Ближайшее окружение представлено объектами жилого и общественно-делового назначения. Район расположения объекта характеризуется развитой инфраструктурой. Высокая интенсивность пешеходных и транспортных потоков около здания. Ближайшая остановка общественного транспорта "Станция Балабаново" находится на расстоянии менее 100 м от объекта недвижимости. !













